ФЖС РБ представляет проект строительства бизнес центров и торговых помещений в Уфе
Фонд жилищного строительства Республики Башкортостан представляет проект строительства бизнес центров и торговых помещений в столице Республики Башкортостан городе Уфе.
О проекте.
В 2007 году Фонд жилищного строительства Республики Башкортостан (ФЖС РБ) приступил к проектированию и строительству объектов коммерческой недвижимости в центральной исторической части города Уфы по улице Фрунзе. На данной улице города расположены правительственные административные здания, в том числе здание Кабинета Министров республики. Также на этой улице расположены: региональное отделение Пенсионного фонда РФ по республике, академия государственной службы при Президенте РБ, Конгресс холл, офисы банков, университеты, а также театры.
Данный проект объединяет в себя строительство трех объектов.
1. Строительство офисного здания, торгового центра и апартаментов по адресу: ул. Фрунзе, 34.
Ориентировочная площадь строений:
Бизнес центр и торговый центр – 27 904,8 кв.м.
Подземная автостоянка – 7149,4 кв.м. (194 м/места).
Ориентировочная стоимость объекта – 1 500 000 000 руб.



2. Строительство офисного здания по адресу : Уфа, Фрунзе, Литер 5.
Ориентировочная площадь строений:
Офисное здание – 12 095 кв.м.
Подземная автостоянка – 2 640 кв.м.
Ориентировочная стоимость объекта – 600 000 000 руб.






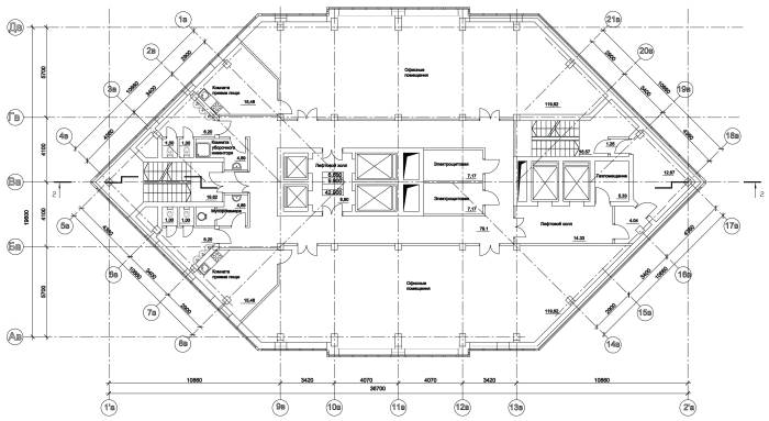
Типовой план этажа
Размеры указанных площадей, корректируются после получения ГУП «ФЖС РБ» проектно-сметной документации в размере достаточном для конкретизации общей площади инвестиционных объектов.
Республика Башкортостан
О регионе
Республика Башкортостан занимает большую часть Южного Урала и прилегающие к нему равнины Башкирского Предуралья и возвышенно-равнинную полосу Башкирского Зауралья. Протяженность территории с севера на юг составляет 550 км, с запада на восток - более 430 км. Площадь - 143 тыс. кв. км (0,8 процента общей площади Российской Федерации). Население Башкортостана - более 4 млн. чел. На территории республики проживают около 100 национальностей. В республике 20 городов, наиболее крупные из них - Уфа, Стерлитамак, Салават, Нефтекамск, Октябрьский. Столицей является город Уфа . Основан в 1574 году. Население - 1,1 млн. чел.
Экономика региона
По основным экономическим показателям республика входит в первую десятку регионов России, занимая 2-е место по объему производства продукции сельского хозяйства, 6-е – по строительству жилых домов, 7-е – по объемам производства промышленной продукции, инвестиций в основной капитал, подрядных работ и платных услуг населению, 8-е – по объему валового регионального продукта, 9-е место по обороту розничной торговли.
Башкортостан занимает восьмое место по поступлениям доходов в бюджетную систему Российской Федерации.
Сложившаяся благоприятная внешнеэкономическая конъюнктура, рост объемов производства способствовали улучшению финансового состояния предприятий и организаций республики.
Инвестиционная активность республики также характеризовалась положительной динамикой. На развитие экономики и социальной сферы в 2006 году за счет всех источников финансирования было направлено около 80 млрд. рублей инвестиций в основной капитал.
24 апреля 2006 года рейтинговое агентство «Standard&Poor’s» повысило долгосрочный кредитный рейтинг Республики Башкортостан с «ВВ-» до «ВВ», прогноз «Стабильный».
24 ноября 2004 года рейтинговое агентство "Moodу's Investors Servise Ltd" повысило кредитный рейтинг Республики Башкортостан по обязательствам в иностранной и национальной валютах с уровня "Ва3" (прогноз стабильный) до уровня "Ва1" (прогноз стабильный). По уровню кредитного рейтинга Башкортостан среди регионов Российской Федерации уступает только городам Москве и Санкт-Петербургу.
Объем внешней торговли региона достиг показателя - 6,9 миллиарда долларов.
Республика укрепляет позиции на международной арене, доказывая свою надежность и перспективность в качестве партнера для долговременного и взаимовыгодного сотрудничества. Сальдо торгового баланса остается положительным и выражается суммой 6,1 миллиарда долларов. В основном, это произошло в результате увеличения объемов экспорта. А в целом за год объем экспортных операций вырос на 27 процентов.
Основными потребителями продукции республиканских товаропроизводителей в минувшем году были компании стран Евросоюза, среди которых наиболее весомые - предприятия Великобритании, Нидерландов, Словакии, Польши, Чехии, а также фирмы, зарегистрированные в свободных экономических зонах - на Багамских и Виргинских островах.
Строительство.
В 2006 году в жилищном строительстве республики отмечены самые высокие показатели за последние 13 лет. За счет всех источников финансирования было построено жилья общей площадью 1705,7 тысячи квадратных метров. Это больше, чем в 2005 году, на шесть процентов.
Источник: http://www.gsfrb.ru/project.php
Количество просмотров - 3116









